디자인 LINEUP
그림같은 일상이 함께하는 보금자리
모바일 제목
hit 55 | inquiry 23
[ Concept ]
순수의 색으로 불리는 화이트 컬러의 외장재에 내추럴함을 더해주는 적삼목으로 개성을 연출한 설계이다. 친근한 이미지의 박공지붕에 재질감을 달리한 외벽 마감과 덧창은 자칫 단조로워 보일 수 있는 외관에 생동감을 살려준다.
Front
Right
Back
Left
HD-019W HOUSEPLAN
- 모 델no.
- HD-019W
- 외벽재
- 스타코플렉스,점토벽돌
- 연 면 적
- 122㎡ (36.91PY)
- 지붕재
- 이중그림자슁글
- 구      조
- 경량목구조
- 내장재
- 실크벽지
- 라 인 업
- WoodyHaus S
- 바닥재
- 강화마루
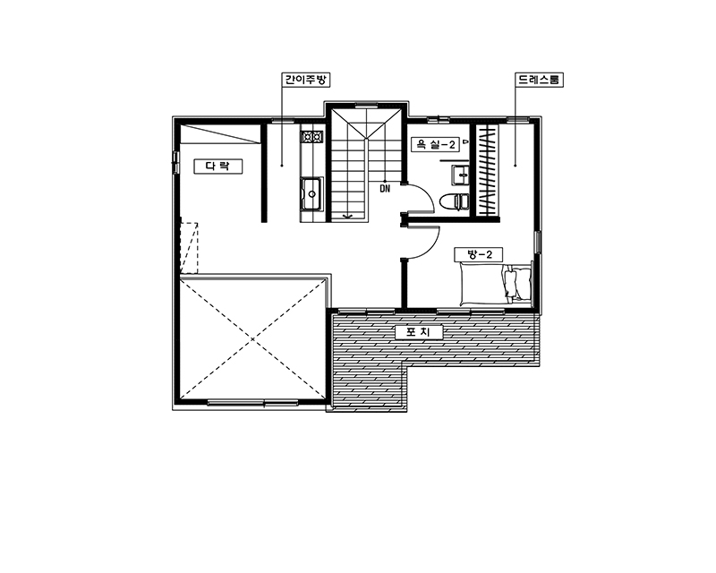
[ House Plan ]
[ Interior Concept ]
전체적으로 따스한 색감의 인테리어가 어울릴 법한 이번 설계는 내추럴한 질감과 색감을 살릴 수 있는 내장재를 활용한 인테리어가 어울리는 집이다. 한가지 컬러를 반복적으로 사용하기 보다는 적절히 포인트를 살릴 수 있는 곳에 파벽돌이나 우드를 적용한다면 아늑하면서도 멋스러운 인테리어를 완성할 수 있다.
디자인 라인업 LINE UP
문의하신 내용이 접수 되었습니다.
한다움건설 건축 매니저가
24시간 이내에 연락드리겠습니다.
고객님이 문의하신 내용
| 이 름 | |
|---|---|
| 연락처 | |
| 이메일 | |
| 건축시기 | |
| 문의내용 |
문의하신 내용은
마이페이지 > 내가 쓴 글에서 확인하실 수 있습니다










