디자인 LINEUP
블랙&화이트 고급스러운 외관의 모던 주택
모바일 제목
hit 55 | inquiry 23
[ Concept ]
전형적인 블랙&화이트 고급스러운 외관의 모던 주택이다. 각 층별로 포치를 두어 외부공간과의 소통을 중요시 했다. 특히 1층의 포치는 부엌의 공간을 확장하여 바베큐나 소형 캠핑이 가능하도록 설계했다. 또한 거실과 주방을 어긋나게 배치함으로써 공간의 구분을 분명하게 하는 동시에 대각선 시선축이 길어져 공간이 넓게 보이도록 했다.
Front
Right
Back
Left
HD-007W HOUSEPLAN
- 모 델no.
- HD-007W
- 외벽재
- 스타코플렉스,세라믹사이딩
- 연 면 적
- 179㎡ (54.15PY)
- 지붕재
- 이중그림자슁글
- 구      조
- 경량목구조
- 내장재
- 실크벽지
- 라 인 업
- WoodyHaus M
- 바닥재
- 강화마루
[ House Plan ]
[ Interior Concept ]
박스형 모던주택에서 느낄 수 있는 현대적인 감성을 내부로 들인 인테리어가 어울리는 이번 설계는 중후하고 무게감있는 블랙 포인트와 컬러 포인트를 활용한 스타일을 적극 추천한다. 심플한듯 직선적인 느낌이 돋보이는 외관 디자인과도 잘 어우러지며, 컬러 포인트를 활용한 인테리어로 유니크하면서 감각적인 인테리어를 완성할 수 있을 것이다.
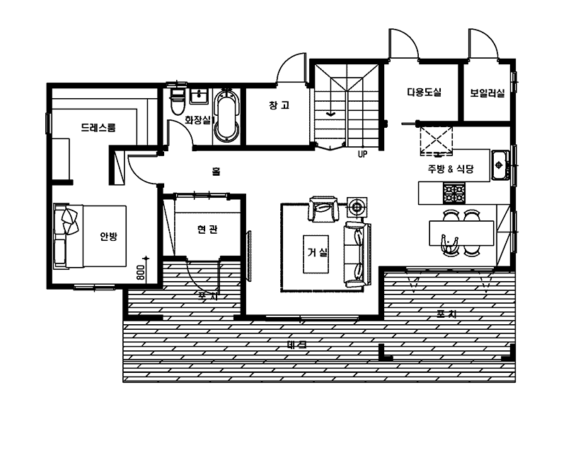
[ Floor Plan ]
공 간 구 성 거실, 주방, 침실3, 욕실2, 가족실, 보조주방, 포치, 발코니, 데크 외
디자인 라인업 LINE UP
문의하신 내용이 접수 되었습니다.
한다움건설 건축 매니저가
24시간 이내에 연락드리겠습니다.
고객님이 문의하신 내용
| 이 름 | |
|---|---|
| 연락처 | |
| 이메일 | |
| 건축시기 | |
| 문의내용 |
문의하신 내용은
마이페이지 > 내가 쓴 글에서 확인하실 수 있습니다










