디자인 LINEUP
아늑한 테라스와 정원을 만끽할 수 있는 집
모바일 제목
hit 55 | inquiry 23
[ Concept ]
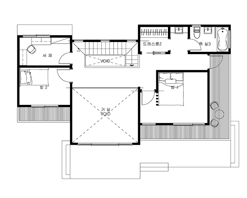
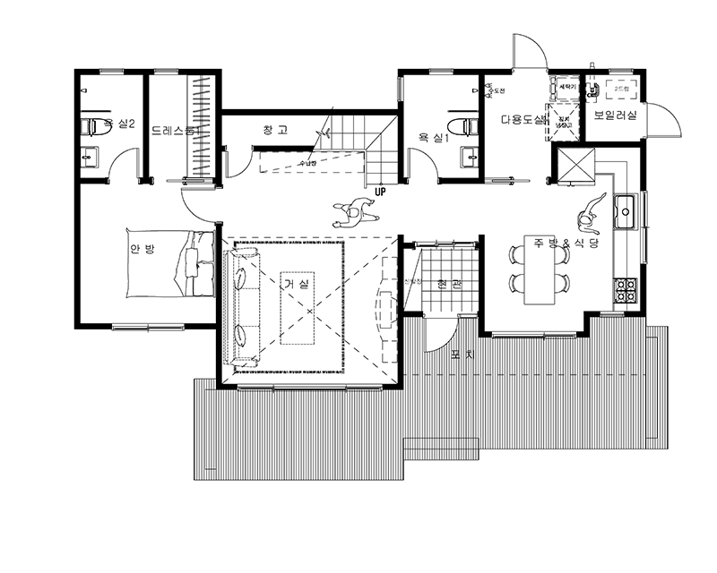
"크고 긴 테라스로 정원과 만나다" 정원을 즐기는 집이라는 컨셉으로 안과 밖이 연결되듯 정원이 가깝게 느껴지는 주택이다. 1층 거실과 2층 안방에는 전면 개방할 수 있는 개구부를 설치하고 그 앞에서 정원으로 돌출된 복도식 테라스를 만들어 다양한 공간활용을 할 수 있는 장점이 있다. 1층 거실에 보이드를 설치하고 그 위로 다리(2층복도)를 놓아 2층 침실과 발코니를 오고 갈 수 있다.
Front
Right
Back
Left
HD-006W HOUSEPLAN
- 모 델no.
- HD-006W
- 외벽재
- 스타코플렉스,세라믹사이딩
- 연 면 적
- 191㎡ (57.78PY)
- 지붕재
- 이중그림자슁글
- 구      조
- 경량목구조
- 내장재
- 실크벽지
- 라 인 업
- WoodyHaus S
- 바닥재
- 강마루
[ House Plan ]
[ Interior Concept ]
완만한 지붕의 경사와 웅장함이 돋보이는 이 설계에는 우아하고 편안함이 공존하는 세미 클래식의 인테리어로 꾸며보는 것은 어떨까? 지나치게 화려하거나 무겁게 느껴질 수 있는 클래식 인테리어 스타일에 모던하고 트렌디한 감각을 더함으로써 한층 산뜻하고 우아한 분위기를 집 안에 부여할 수 있을 것이다.
디자인 라인업 LINE UP
문의하신 내용이 접수 되었습니다.
한다움건설 건축 매니저가
24시간 이내에 연락드리겠습니다.
고객님이 문의하신 내용
| 이 름 | |
|---|---|
| 연락처 | |
| 이메일 | |
| 건축시기 | |
| 문의내용 |
문의하신 내용은
마이페이지 > 내가 쓴 글에서 확인하실 수 있습니다










