디자인 LINEUP
존재감 있는 고급 단독주택 설계
모바일 제목
hit 55 | inquiry 23
[ Concept ]
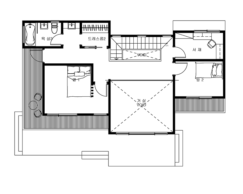
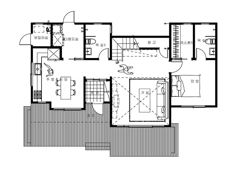
사각의 매스로 이루어져 무게감과 중후한 느낌을 주는 이번 설계는 오래 보아도 질리지 않는 심플한 디자인을 추구하고 있다. 두 세대가 살기에 충분한 공간 구성으로 1층 거실에 보이드를 설치하고 그 위로 다리(2층복도)를 놓은 설계로써그 동선으로 오고 가면 특별한 공간이 기다리고 있을 것만 같은 설레임을 주게한다.
Front
Right
Back
Left
HD-005W HOUSEPLAN
- 모 델no.
- HD-005W
- 외벽재
- 스타코플렉스,세라믹사이딩,징크
- 연 면 적
- 150㎡ (45.38PY)
- 지붕재
- 이중그림자슁글
- 구      조
- 내장재
- 실크벽지,vp도장
- 라 인 업
- WoodyHaus M
- 바닥재
- 원목마루,대리석
[ House Plan ]
[ Interior Concept ]
웅장한 매스감의 디자인에 어울리는 인테리어로
기품있고 고급스러운 모던 클래식 스타일이 제격이다. 차분함과 우아함이 느껴지는 컬러 선택, 마감이 깔끔한 소재 선택, 본인의 취향 안에서 클래식 스타일의 가구와 조명을 찾아내 적절히 더하는 것만으로도 충분히 모던하면서 클래식한 인테리어 스타일을 완성할 수 있다.
디자인 라인업 LINE UP
문의하신 내용이 접수 되었습니다.
한다움건설 건축 매니저가
24시간 이내에 연락드리겠습니다.
고객님이 문의하신 내용
| 이 름 | |
|---|---|
| 연락처 | |
| 이메일 | |
| 건축시기 | |
| 문의내용 |
문의하신 내용은
마이페이지 > 내가 쓴 글에서 확인하실 수 있습니다










