디자인 LINEUP
전원생활의 여유가 깃든 주택 설계
모바일 제목
hit 55 | inquiry 23
[ Concept ]
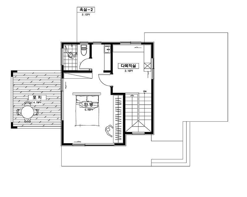
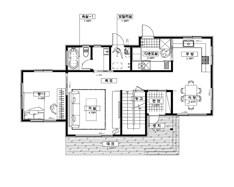
장방형으로 웅장하며 세련된 인상을 주는 주택은 간결한 면과 선의 조합으로 모던함을 살리되 주택 전면에 다양한 창과 2층의 발코니를 두어 단독주택만의 여유로움을 느낄 수 있다. 현관을 중심으로 거실과 주방공간을 분리하였으며, 주방 바로 옆에 다용도실에는 보조 요리공간과 수납공간을 조성하였으며, 2층의 넉넉한 사이즈의 포치는 전원생활의 여유로움을 즐기기에 손색이 없다.
Front
Right
Back
Left
HD-004W HOUSEPLAN
- 모 델no.
- HD-004W
- 외벽재
- 스타코플렉스,세라믹사이딩,파벽돌
- 연 면 적
- 153㎡ (46.28PY)
- 지붕재
- 이중그림자슁글
- 구      조
- 경량목구조
- 내장재
- 실크벽지
- 라 인 업
- WoodyHaus M
- 바닥재
- 강화마루
[ House Plan ]
[ Interior Concept ]
오픈된 공간으로 들어오는 부드러운 햇빛과 쾌적한 공기를 즐길 수 있는 내부는 포근한 감성이 느껴지는 내추럴 스타일의 인테리어로 안정된 느낌을 연출할 수 있다. 러그&카펫, 다양한 패브릭 외에도 소재와 컬러, 다채로운 패턴과 디자인의
소품을 활용한다면 누구나 쉽게 공간에 따스함을 불어넣는 인테리어에 변화를 줄 수 있다.
디자인 라인업 LINE UP
문의하신 내용이 접수 되었습니다.
한다움건설 건축 매니저가
24시간 이내에 연락드리겠습니다.
고객님이 문의하신 내용
| 이 름 | |
|---|---|
| 연락처 | |
| 이메일 | |
| 건축시기 | |
| 문의내용 |
문의하신 내용은
마이페이지 > 내가 쓴 글에서 확인하실 수 있습니다










