디자인 LINEUP
따로 또 같이 - 2세대를 위한 공간 설계
모바일 제목
hit 55 | inquiry 23
[ Concept ]
안정적인 비례의 미가 돋보이는 이번 사례는 기본적인 박스형 매스에 모임지붕으로 안정적인 느낌을 느낄 수 있다.화려한 디자인 포인트보다는 최대한 기본에 충실하면서 편리한 생활공간에 초점을 둔 설계는 1층 부모님세대, 2층 자녀세대가 머무는 공간을 적절히 담아내고 있다. 더불어 2세대 주택의 특성에 맞게 가족이 함께 모일 수 있는 거실과 식사 공간을 넉넉히 구성하였다.
Front
Right
Back
Left
HD-003W HOUSEPLAN
- 모 델no.
- HD-003W
- 외벽재
- 스타코플렉스,세라믹사이딩
- 연 면 적
- 169㎡ (51.12PY)
- 지붕재
- 이중그림자슁글
- 구      조
- 경량목구조
- 내장재
- 실크벽지
- 라 인 업
- WoodyHaus S
- 바닥재
- 강화마루
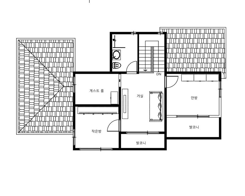
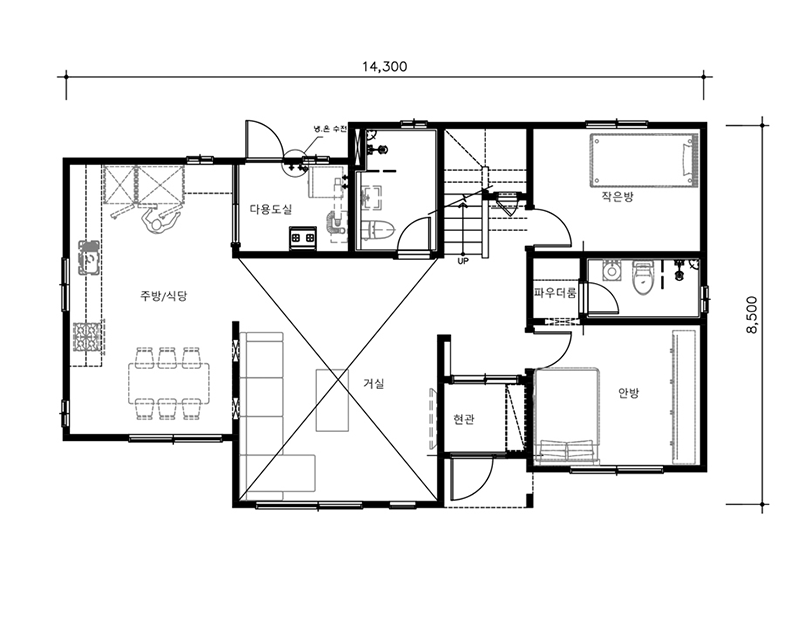
[ House Plan ]
[ Interior Concept ]
차분하고 편안한 분위기가 매력적인 젠스타일은 동양적인 요소들에 현대적인 세련미가 가미된 스타일이다. 일본식 주택의 외관 디자인과 어우러지는 이 스타일은 전체적으로 차분한 분위기 안에서도 동양적이면서 자연의 요소를 활용한 소품 활용이 돋보이는 스타일링으로 보다 멋진 연출을 할 수 있다.
디자인 라인업 LINE UP
문의하신 내용이 접수 되었습니다.
한다움건설 건축 매니저가
24시간 이내에 연락드리겠습니다.
고객님이 문의하신 내용
| 이 름 | |
|---|---|
| 연락처 | |
| 이메일 | |
| 건축시기 | |
| 문의내용 |
문의하신 내용은
마이페이지 > 내가 쓴 글에서 확인하실 수 있습니다










