디자인 LINEUP
삼각형 대지의 효율을 높이는 도심 속 중목구조 주택 설계
모바일 제목
hit 55 | inquiry 23
[ Concept ]
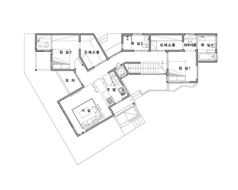
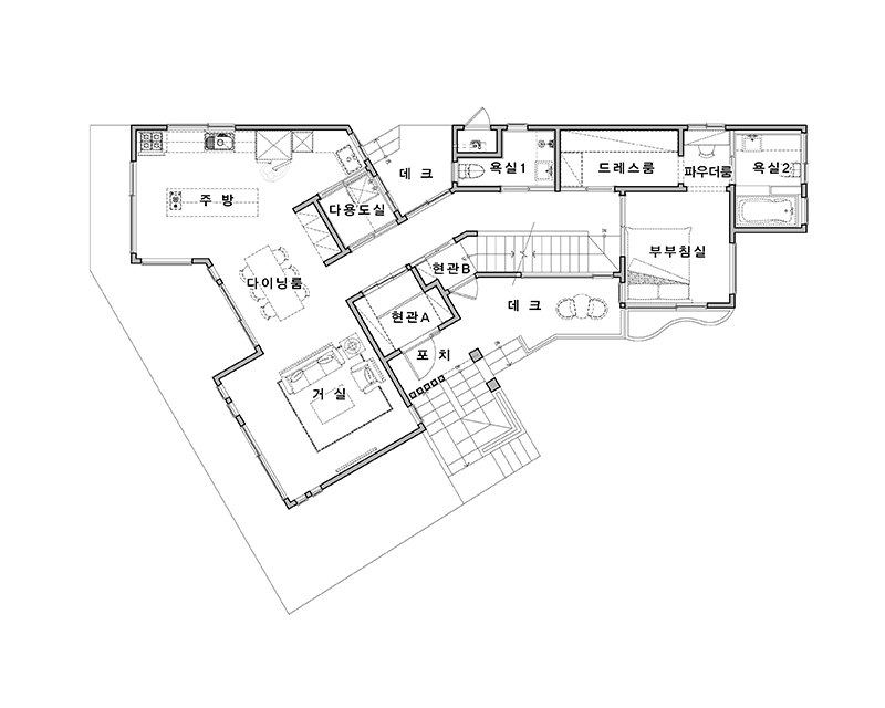
서울 도심 속 단독주택들이 들어선 곳에 시공될 HD-021P 모델은 기존의 콘크리트 주택을 헐고 쾌적한 중목구조 주택으로 재탄생될 예정이다. 삼각형 모양의 한정적인 대지의 특성을 효율적으로 살리되 로스 없는 토지의 사용, 밝고 따스한 빛이 집에 중점을 두어 설계한 HD-021P는 독특한 삼각형 대지에 맞게 설계를 진행하여 보는 측면에 따라 마치 다른 주택을 보는 듯한 다이나믹한 뷰를 선사함은 물론 거실의 매스를 꺾어줌으로써 일조량을 늘리고 북측에 있는 북한산의 조망을 집안으로 들일 수 있게끔 하였다. 더불어 거주자의 생활 패턴을 고려하여 1층 현관 출입구에 서브 현관을 둠으로써 해외에 거주 중인 자녀세대를 위한 공간까지 알차게 계획했다.
Front
Right
Back
Left
HD-021P HOUSEPLAN
- 모 델no.
- HD-021P
- 외벽재
- 세라믹사이딩
- 연 면 적
- 212㎡ (64.13PY)
- 지붕재
- 세라믹사이딩
- 구      조
- 중목구조
- 내장재
- 규조토
- 라 인 업
- Polushome
- 바닥재
- 강마루
[ House Plan ]
[ Interior Concept ]
이번 HD-021P 모델은 습기가 많은 오래된 콘크리트 주택을 헐고 아늑하고 쾌적한 중목구조 주택으로 시공되는 만큼 중목구조의 장점을 최대한
살리는 인테리어를 적용할 계획이다. 일본식 중목구조의 특징인 보의 노출을 최대한 활용하여 연세가 있으신 건축주 부부에게 한옥에서 느낄 수 있는
요소들을 적용해 친근하고 익숙한 분위기를 연출함은 물론 차갑고 딱딱한 모던 스타일의 인테리어보다는 나무의 질감에서 얻을 수 있는 자연스러움과
따스한 느낌의 공간 연출을 기대해볼 만하다.
문의하신 내용이 접수 되었습니다.
한다움건설 건축 매니저가
24시간 이내에 연락드리겠습니다.
고객님이 문의하신 내용
| 이 름 | |
|---|---|
| 연락처 | |
| 이메일 | |
| 건축시기 | |
| 문의내용 |
문의하신 내용은
마이페이지 > 내가 쓴 글에서 확인하실 수 있습니다














