디자인 LINEUP
빛과 바람이 머무는 40평 중목주택 설계
모바일 제목
hit 55 | inquiry 23
[ Concept ]
이번 한다움건설에서 새롭게 진행하는 40평대 중목구조 주택인 HD-022P는 규격화된 주거공간이 아닌 거주자의 취향을 담은 일상의 쉼표가 되는 집이다. 단정한 박공지붕과 사선의 외지붕의 조화가 멋스러울 뿐 아니라 전원생활에서 누리고자 하는 여유로운 휴식 공간을 담아내고 있다. 특히 1층과 2층의 다양한 창과 포치는 다채로운 외관의 볼륨감을 물론 외부의 조망을 내부로 잘 담아낼 수 있도록 하였다.
Front
Right
Back
Left
HD022G HOUSEPLAN
- 모 델no.
- HD022G
- 외벽재
- 스타코플렉스,세라믹사이딩
- 연 면 적
- 133㎡ (40.23PY)
- 지붕재
- 평기와
- 구      조
- 중목구조
- 내장재
- 실크벽지
- 라 인 업
- GalaxyHeim
- 바닥재
- 강화마루
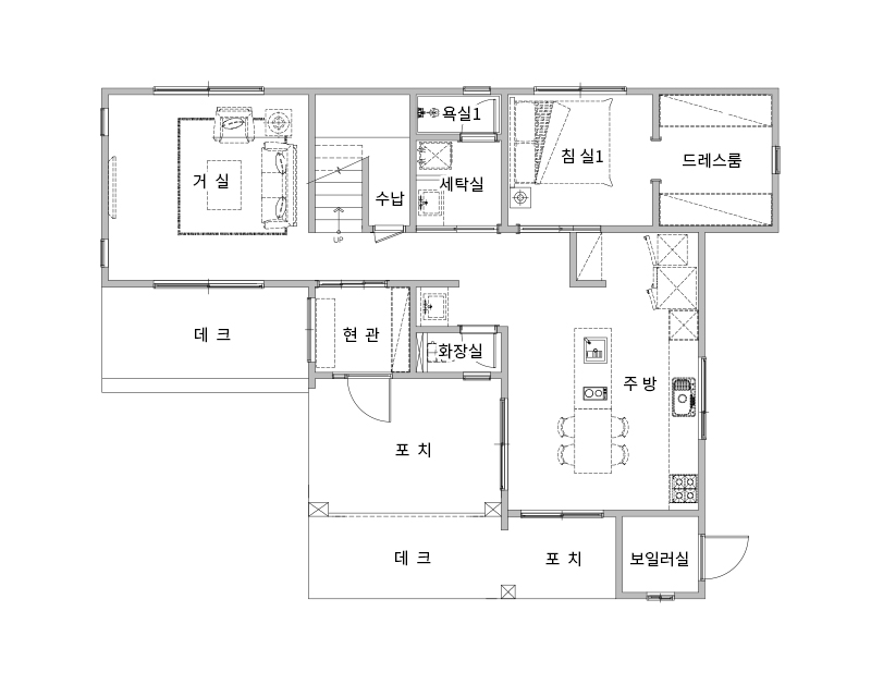
[ House Plan ]
[ Interior Concept ]
HD-022P는 단정하고 깔끔한 외관에 어우러질 수 있는 모던내추럴 인테리어가 잘 어울리는 사례이다. 내부 공간은 편안한 휴식을 즐길 수 있도록
심플한 화이트 컬러를 베이스로 하여 확장감을 주되, 텍스쳐나 컬러가 다른 마감재를 사용해 밋밋함을 덜어낼 수 있다.
문의하신 내용이 접수 되었습니다.
한다움건설 건축 매니저가
24시간 이내에 연락드리겠습니다.
고객님이 문의하신 내용
| 이 름 | |
|---|---|
| 연락처 | |
| 이메일 | |
| 건축시기 | |
| 문의내용 |
문의하신 내용은
마이페이지 > 내가 쓴 글에서 확인하실 수 있습니다













